Zur Navigation wechseln Zum Inhalt wechseln Zum Footer wechseln

Courtagefrei – voll unterkellerte Doppelhaushälfte mit Garage in sanierungsbedürftigem Zustand

ImmoNr
5087
Objektart
Haus
Objekttyp
Doppelhaushälfte
Vermarktungsart
Kauf
PLZ
22941
Ort
Bargteheide
Land
Deutschland
Wohnfläche
ca. 111 m²
Nutzfläche
ca. 55 m²
Gesamtfläche
ca. 166 m²
Grundstücksgröße
ca. 351 m²
Anzahl Zimmer
3
Anzahl Schlafzimmer
2
Stellplätze
1 Garage
Terrasse
Ja
Kaufpreis
299.000,00 €

Zur Immobilie

Die im Jahr 1957 errichtete und 1980 zu einem Doppelhaus ausgebaute Haushälfte verfügt über eine Wohnfläche von ca. 111,15 m² sowie eine vollwertige Unterkellerung, eine Einzelgarage und eine teilverglaste Veranda im rückwärtigen Bereich. Das Doppelhaus befindet sich im Wohnungseigentum, sodass diese Hälfte mit 1/2 Miteigentumsanteil an dem 702 m² großen Gesamtgrundstück erworben wird. Der Zustand ist insgesamt als sanierungsbedürftig zu bezeichnen.

Beim Betreten des Hauses befindet man sich in einem Windfang mit anliegendem Gäste-WC. Vom Windfang gelangt man in den Flur, welcher auf der linken Seite Zugang zur Küche bietet. Über die Küche lässt sich die teilverglaste Veranda betreten, welche in Richtung des rückwärtigen Gartenbereichs ausgerichtet ist. Zudem lässt sich über den Flur das großzügige Wohn- und Esszimmer betreten, welches durch zwei große Fenster mit viel Tageslicht versorgt wird. Das Wohn- und Esszimmer verfügt zudem über einen Kaminofen.

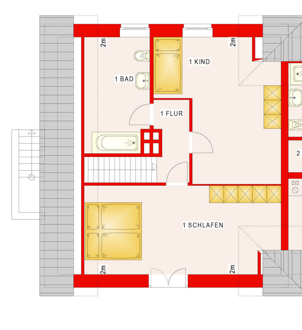
Das Dachgeschoss des Hauses bietet zwei großzügig gestaltete Schlafzimmer sowie ein Tageslicht-Badezimmer mit Badewanne. Über eine Bodeneinschubtreppe gelangt man zudem in den Spitzboden des Hauses.

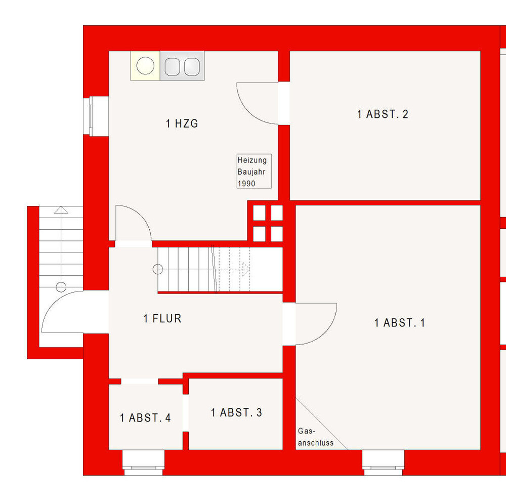
Im Kellergeschoss sind die Waschküche, ein großer Lagerraum, ein kleiner Raum sowie der Heizungsraum vorzufinden. Die Gas-Zentralheizung ist im Jahr 1990 installiert worden und muss im Zuge des Erwerbs zwangsläufig erneuert werden. Eine Kelleraußentreppe bietet einen zusätzlichen Zugang zum Keller von der Einfahrt aus.

299.000 € 19.435 € 4.485 € 1.495 €
Kaufpreis
299.000 €
Grunderwerbsteuer
19.435 €
Maklerprovision
Notargebühren *
4.485 €
Grundbucheintrag *
1.495 €
Gesamtkosten
324.415 €
* Für die Berechnung der Notar- und Grundbuchkosten wird ein Standardwert von 1,5% bzw. 0,5% verwendet.
A+
< 30
A
30 – 50
B
50 – 75
C
75 – 100
D
100 – 130
E
130 – 160
F
160 – 200
G
200 – 250
H
> 250
Nutzungsart
Wohnen
Endenergiebedarf
490,3 kWh/(m²a)
Energieausweis
Bedarfsausweis
Energieausweis gültig bis
22.11.2035
Energieeffizienzklasse
H
wesentlicher Energieträger
Gas

Bargteheide ist eine Stadt mit ca. 16.000 Einwohnern und liegt inmitten einer reizvollen Landschaft. Das Schloss Tremsbüttel, der Duvenstedter Brook, Forst- und Parkgelände von Jersbek liegen in unmittelbarer Umgebung. Nur wenige Autominuten benötigt man zur Autobahn A1, um an die Ostseebäder, nach Lübeck oder nach Hamburg zu gelangen.

Die öffentlichen Verkehrsmittel wie Regionalbahn und Bus schaffen eine hervorragende Verbindung zu den Einkaufszentren von Hamburg und Lübeck. Darüber hinaus kann man ab Ahrensburg auch die U-Bahn benutzen. Die Fahrtzeit Bargteheide-Hamburg beträgt nur etwa 30 Minuten.

Bargteheide bietet das, was Sie von einem aufstrebenden modernen Wohnort erwarten. Selbst der Wochenmarkt fehlt nicht. Bargteheide verfügt über fast alle wichtigen Dienstleistungsbetriebe sowie Arztpraxen und soziale Einrichtungen.

In Bargteheide gibt es Kirchen mehrerer Konfessionen. Es gibt Grundschulen, eine Förderschule, zwei Gymnasien und zwei Gemeinschaftsschulen mit Oberstufe. Zahlreiche Kindergärten stehen ebenfalls zur Verfügung.

Eine moderne Sportanlage, ein beheiztes Schwimmbad in Waldlage, Tennisclub, Schützenverein, Reitschulen und viele Möglichkeiten auf kulturellem Gebiet wie z.B. das über Bargteheide hinaus beliebte "Kleine Theater" runden das Angebot ab.

Einer der renommiertesten Golf-Clubs in Schleswig-Holstein, der Golf-Club Jersbek e.V., befindet sich ebenfalls in unmittelbarer Nähe von Bargteheide.

22941 Bargteheide, Deutschland

Courtagefrei – voll unterkellerte Doppelhaushälfte mit Garage in sanierungsbedürftigem Zustand

Als Familienbetrieb mit fast 40 Jahren Erfahrung im Immobilienbereich sind wir Ihr zuverlässiger Partner. Unser engagiertes Team von IHK-geprüften Immobilienkaufleuten steht Ihnen tatkräftig zur Seite und kümmert sich um sämtliche Schritte im Verkaufs- und Vermietungsprozess.

Unser Rundum-Service umfasst die gesamte Bandbreite des Immobilienverkaufs / der Immobilienvermietung:

– Als zertifizierter Sachverständiger (gem. ISO/IEC 17024) erstellen wir Ihnen bei einem angedachten Verkauf Ihrer Immobilie vorab eine fundierte Wertermittlung.
– Wir setzen auf umfassende Werbemaßnahmen und eine breite Präsenz auf den führenden Immobilienplattformen, um Ihre Immobilie schnell und erfolgreich vermitteln zu können.
– Unser erfahrenes Team begleitet Sie über die erfolgreiche Vermittlung hinaus und kümmert sich anschließend um sämtliche organisatorische Details.

Wir freuen uns darauf, Sie persönlich zu beraten und Ihnen bei Ihren Immobilienanliegen behilflich sein zu dürfen.

Ihr Ansprechpartner

Jan-Vico Streese

Herr Jan-Vico Streese

Wehrhahn Immobilien e.K.

Tel.:
+49 151 – 23800315
E-Mail:
vertrieb@wehrhahn-immobilien.de

Rathausstraße 1b
22941 Bargteheide

Weitere Immobilien

22955 Hoisdorf

Kapitalanlage: Moderne Doppelhaushälfte mit gehobener Ausstattung in familienfreundlicher Wohnlage

ImmoNr
6242.2
Objektart
Haus
Objekttyp
Doppelhaushälfte
Vermarktungsart
Kauf
Anzahl Zimmer
5
Anzahl Schlafzimmer
4
Grundstücksgröße
ca. 538 m²
Wohnfläche
ca. 118 m²

23863 Bargfeld Stegen

Wohnidylle in ruhiger Lage: Charmantes Haus mit großem Garten & Vollkeller

ImmoNr
6368
Objektart
Haus
Objekttyp
Einfamilienhaus
Vermarktungsart
Kauf
Anzahl Zimmer
6
Anzahl Schlafzimmer
5
Grundstücksgröße
ca. 760 m²
Wohnfläche
ca. 173 m²

22955 Hoisdorf

Erstbezug: Hochwertige Doppelhaushälfte in zweiter Reihe mit idyllischem Garten

ImmoNr
6360.3
Objektart
Haus
Objekttyp
Doppelhaushälfte
Vermarktungsart
Kauf
Anzahl Zimmer
4,5
Anzahl Schlafzimmer
3,5
Grundstücksgröße
ca. 641 m²
Wohnfläche
ca. 117 m²

23863 Bargfeld Stegen

Attraktives Ein-/Zweifamilienhaus mit Vollkeller und großzügigem Garten in ruhiger Wohnlage

ImmoNr
6406
Objektart
Haus
Objekttyp
Zweifamilienhaus
Vermarktungsart
Kauf
Anzahl Zimmer
6
Anzahl Schlafzimmer
5
Grundstücksgröße
ca. 760 m²
Wohnfläche
ca. 173 m²

22949 Ammersbek

Mit zusätzlichem Baugrundstück: Sanierungsbedürftiges EFH mit Vollkeller in naturnaher Lage

ImmoNr
6411
Objektart
Haus
Objekttyp
Einfamilienhaus
Vermarktungsart
Kauf
Anzahl Zimmer
5
Anzahl Schlafzimmer
3
Grundstücksgröße
ca. 1.052 m²
Wohnfläche
ca. 116 m²

    Ihre Anfrage zu der Immobilie „Courtagefrei – voll unterkellerte Doppelhaushälfte mit Garage in sanierungsbedürftigem Zustand“ (5087)

    * Pflichtfelder

    Reviews
    5
    (72)