Zur Navigation wechseln Zum Inhalt wechseln Zum Footer wechseln

Erstbezug: Hochwertige Doppelhaushälfte in zweiter Reihe mit idyllischem Garten

ImmoNr
6360.3
Objektart
Haus
Objekttyp
Doppelhaushälfte
Vermarktungsart
Kauf
PLZ
22955
Ort
Hoisdorf
Land
Deutschland
Wohnfläche
ca. 117 m²
Nutzfläche
ca. 5 m²
Gesamtfläche
ca. 122 m²
Grundstücksgröße
ca. 641 m²
Anzahl Zimmer
4,5
Anzahl Schlafzimmer
3,5
Stellplätze
2 Freiplätze
Terrasse
Ja
Kaufpreis
659.000,00 €

Zur Immobilie

Bei dem hier angebotenen Objekt handelt es sich um eine hochwertige Doppelhaushälfte, welche derzeit in Hoisdorf realisiert wird. Diese Doppelhaushälfte entsteht auf einem Grundstück in zweiter Reihe mit einer Grundstücksfläche von 641 m² zuzüglich anteiliger Gemeinschaftsfläche und wird über ca. 121,98 m² Wohn- und Nutzfläche verfügen. Die Wohnfläche verteilt sich auf drei Geschosse.

Beim Betreten der Doppelhaushälfte wird man sich in einem großzügigen Flur befinden, von welchem man direkten Zugang zu einem mit Fenster ausgestatteten Gäste-WC und einem Abstellraum mit sämtlichen Hausanschlüssen haben wird. Ebenfalls befindet sich im Erdgeschoss eine großzügige Küche sowie ein offenes Wohn- und Esszimmer, welches zum Verweilen einlädt. Vom Wohn- und Esszimmer aus wird sich eine Terrasse betreten lassen. Ein von der Terrasse zugänglicher Schuppen wird eine optimale Lagerung von Gartengeräten sowie einen Sichtschutz zum Nachbarn bieten.

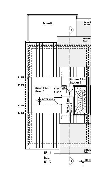
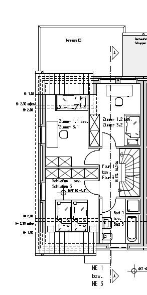
Im Dachgeschoss werden sich drei vollwertige, helle Schlafzimmer und ein Badezimmer befinden. Das Badezimmer wird über eine moderne Ausstattung verfügen und sowohl eine Badewanne als auch eine bodengleiche Dusche und einen Handtuchheizkörper bieten.

Der Spitzboden der Haushälfte wird über ein weiteres Zimmer mit großem Dachfenster verfügen, welches als Büro, Hobbyraum oder auch als Schlafzimmer genutzt werden kann. Zwei zusätzliche Abstellräume sind ebenfalls im ausgebauten Spitzboden zu finden.

HINWEIS: Bei den nachfolgenden Bildern handelt es sich um Vergleichsbilder, welche von ehemaligen Neubauprojekten mit ähnlicher bis gleicher Bauweise entnommen wurden.

659.000 € 42.835 € 9.885 € 3.295 €
Kaufpreis
659.000 €
Grunderwerbsteuer
42.835 €
Maklerprovision
Notargebühren *
9.885 €
Grundbucheintrag *
3.295 €
Gesamtkosten
715.015 €
* Für die Berechnung der Notar- und Grundbuchkosten wird ein Standardwert von 1,5% bzw. 0,5% verwendet.

Allgemeines:
Die Haushälfte wird schlüsselfertig übergeben. Sowohl Malerarbeiten als auch Bodenbeläge und der Bau der Außenanlage mit Terrasse sind im Preis enthalten. Nicht im Preis enthalten ist eine Einbauküche. Bei Interesse empfehlen wir Ihnen hierbei gerne passende und zuverlässige Dienstleister.

Als Heizungsanlage und zur Warmwasseraufbereitung wird von uns eine Luft-/ Wasser-/ Wärmepumpe eingebaut. Die Aufstellung der Außeneinheit erfolgt im Eingangsbereich und die Inneneinheit im HA-Raum. Die Regelung der Heizungsanlage erfolgt über einen witterungsgeführten Heizungsregler mit Außenfühler und mit einstellbarer Nachtabsenkung.

Fußbodenheizung
Die Doppelhaushälften erhalten eine Fußbodenheizung im Erd- und Dachgeschoss sowie im Spitzboden. Das Bad im Dachgeschoss erhält zusätzlich einen Handtuchheizkörper. Der Verkäufer behält sich vor, statt der beschriebenen Fußbodenheizung den Spitzboden mit einem Heizkörper mit Thermostatventil auszustatten.

Sanitärobjekte
Es werden weiße Bade-und Duschwannen der Firma Kaldewei eingebaut, die WC-Becken und die Waschtische von der Firma Sanibel Serie 5001, oder gleichwertig, ebenfalls in Sanitärfarbe weiß. Duschabtrennungen sind nicht enthalten, sofern nicht gesondert beauftragt.

Lüftung
Im Erd-und Dachgeschoss, sowie im ausgebauten Spitzboden (Zimmer)kommen LUNOS Lüftungsgeräte mit Wärmerückgewinnung zur Ausführung. Die Lüftungsgeräte arbeiten nach dem Prinzip des regenerativen Wärmetausches. Der Speicherstein sitzt mitten im Luftstrom eines EC-Axialventilators. Durch einen reversierenden Luftstrom, welcher durch gezielten Richtungswechsel des Ventilators entsteht, lädt sich die Keramik mit der Wärmeenergie der Raumluft auf und gibt sie an die zugeführte Außenluft wieder ab. Dies geschieht so effizient, dass ca. 91 % der in der Luft enthaltenen Heizenergie durch die Lüftungsgeräte zurückgewonnen werden.

Die vollständige Baubeschreibung erhalten Sie mit Übersendung unseres Exposés.

A+
< 30
A
30 – 50
B
50 – 75
C
75 – 100
D
100 – 130
E
130 – 160
F
160 – 200
G
200 – 250
H
> 250
Nutzungsart
Wohnen
Endenergiebedarf
18 kWh/(m²a)
Energieausweis
Bedarfsausweis
Energieausweis gültig bis
02.03.2033
Energieeffizienzklasse
A+
wesentlicher Energieträger
Luft/Wasser Wärmepumpe

Hoisdorf, ein beschauliches Dorf in unmittelbarer Nähe zu Großhansdorf, liegt mit seinen 3.600 Einwohnern im Einzugsgebiet von Hamburg und im südlichen Teil des Kreises Stormarn in Schleswig-Holstein. Die Nachbargemeinde Großhansdorf sowie die Gemeinde Siek und die Kleinstadt Ahrensburg sind in wenigen Minuten mit dem Auto zu erreichen.

Für das leibliche Wohl sorgt in Hoisdorf eine kleine Bäckerei mit täglich frischen Brötchen. Für alle weiteren Einkäufe des täglichen Bedarfs bieten sowohl Großhansdorf als auch Ahrensburg eine großzügige Auswahl. In Hoisdorf kann man sich beim TuS Hoisdorf e.V., beim Tennisclub oder auch bei einem Reitverein sportlich betätigen. Das Theater/ Jugendtheater Hoisdorf bietet Raum und Kulisse für öffentliche Veranstaltungen. Die unter Naturschutz stehenden Hoisdorfer Teiche laden zu gemütlichen Spaziergängen ein.

Die B404, BAB 1 und den Buslinienverkehr erreicht man in kürzester Zeit. Eine Grundschule ist vor Ort, alle weiterführenden Schulen sind in Ahrensburg, Großhandorf und Trittau auffindbar.

22955 Hoisdorf, Deutschland

Erstbezug: Hochwertige Doppelhaushälfte in zweiter Reihe mit idyllischem Garten

Als Familienbetrieb mit fast 40 Jahren Erfahrung im Immobilienbereich sind wir Ihr zuverlässiger Partner. Unser engagiertes Team von IHK-geprüften Immobilienkaufleuten steht Ihnen tatkräftig zur Seite und kümmert sich um sämtliche Schritte im Verkaufs- und Vermietungsprozess.

Unser Rundum-Service umfasst die gesamte Bandbreite des Immobilienverkaufs / der Immobilienvermietung:

– Als zertifizierter Sachverständiger (gem. ISO/IEC 17024) erstellen wir Ihnen bei einem angedachten Verkauf Ihrer Immobilie vorab eine fundierte Wertermittlung.
– Wir setzen auf umfassende Werbemaßnahmen und eine breite Präsenz auf den führenden Immobilienplattformen, um Ihre Immobilie schnell und erfolgreich vermitteln zu können.
– Unser erfahrenes Team begleitet Sie über die erfolgreiche Vermittlung hinaus und kümmert sich anschließend um sämtliche organisatorische Details.

Wir freuen uns darauf, Sie persönlich zu beraten und Ihnen bei Ihren Immobilienanliegen behilflich sein zu dürfen.

Ihr Ansprechpartner

Jan-Vico Streese

Herr Jan-Vico Streese

Wehrhahn Immobilien e.K.

Tel.:
+49 151 – 23800315
E-Mail:
vertrieb@wehrhahn-immobilien.de

Rathausstraße 1b
22941 Bargteheide

Weitere Immobilien

22941 Bargteheide

Courtagefrei – voll unterkellerte Doppelhaushälfte mit Garage in sanierungsbedürftigem Zustand

ImmoNr
5087
Objektart
Haus
Objekttyp
Doppelhaushälfte
Vermarktungsart
Kauf
Anzahl Zimmer
3
Anzahl Schlafzimmer
2
Grundstücksgröße
ca. 351 m²
Wohnfläche
ca. 111 m²

22955 Hoisdorf

Kapitalanlage: Moderne Doppelhaushälfte mit gehobener Ausstattung in familienfreundlicher Wohnlage

ImmoNr
6242.2
Objektart
Haus
Objekttyp
Doppelhaushälfte
Vermarktungsart
Kauf
Anzahl Zimmer
5
Anzahl Schlafzimmer
4
Grundstücksgröße
ca. 538 m²
Wohnfläche
ca. 118 m²

22949 Ammersbek

Mit zusätzlichem Baugrundstück: Sanierungsbedürftiges EFH mit Vollkeller in naturnaher Lage

ImmoNr
6411
Objektart
Haus
Objekttyp
Einfamilienhaus
Vermarktungsart
Kauf
Anzahl Zimmer
5
Anzahl Schlafzimmer
3
Grundstücksgröße
ca. 1.052 m²
Wohnfläche
ca. 116 m²

    Ihre Anfrage zu der Immobilie „Erstbezug: Hochwertige Doppelhaushälfte in zweiter Reihe mit idyllischem Garten“ (6360.3)

    * Pflichtfelder

    Reviews
    5
    (72)